We'll design and build your ideal

414 Solutions offers complete project management for your outdoor living environment creation. From design to build to all the finishing touches, we've got you covered.

What sets us apart? We're glad you asked! The answer is, we do almost everything in-house.
From idea conception to design to completion - 414 Garden, Office and Leisure Rooms bring a wealth of expertise to ensure your project runs smoothly, from start to finish.

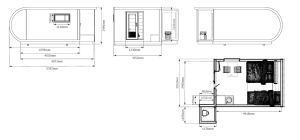
Garden room

414 SOLUTIONS
ALL THE EXPERTISE YOUR OUTDOOR LIVING PROJECT NEEDS - UNDER ONE ROOF

We believe the service we offer is unique. We'll manage every aspect of your project, from start to finish. You'll interact with only the core team - there'll be no need for you to spend time trying to organise subcontractors or juggle timelines. All your needs and requirements will be met at a personal level, meaning your experience will be easy and positive. We want to understand your ideas, listen to your questions and make sure we know exactly what you want to achieve.

Services

GARDEN ROOMS - OUTDOOR LIVING SPACE DESIGNED AND CUSTOMISED TO SUIT YOUR EVERY NEED
OFFICE ROOMS - HELPING YOU TO CREATE A PRACTICAL AND DURABLE OUTDOOR WORK ENVIRONMENT
LEISURE ROOMS - AN EXTENSION OF YOUR LIVING SPACE - A HOME GYM, OR HOBBY SPACE - THE POSSIBILITIES ARE ENDLESS

We're great at coming up with creative solutions that fit your needs.

Projects Completed
1
Happy Customers
1
Combined Years of Experience
0
Areas of Expertise
0

ACCREDITATION AND SUSTAINABILITY

  • NAPIT Accreditation

    It is important that you get work done by competent people working for businesses who are committed to quality, safety and customer care. NAPIT certificated scheme members have demonstrated their competence, they hold the necessary insurances and have the right processes and procedures to assure compliance.

  • Sustainable Business Practises

    We strive to reduce the environmental footprint of our business - we're not perfect but we work hard to decrease our carbon footprint by: Using suppliers close to a job where possible - saving on fuel and travel costs Recycling our waste - we also have a waste-carrying license so there's a reduced likelihood of you needing a half-full skip Having a good network of trusted contractors which means we can use local people for local jobs.

  • Safe Contractor Accreditation

    Safe Contractor accreditation gives us peace of mind that our supply chain is secure and resilient. It allows our team to demonstrate that they meet the necessary requirements around health and safety, environment, modern slavery, diversity, equality, workplace well-being and financial stability.

OUTDOOR LIVING SPACE

QUESTIONS AND ANSWERS

414 Garden, Office and Leisure Rooms offer a build service as an addition to their flatpack garden and office room provision. 

We can help you plan, design and build your garden, office or leisure room in-house, with our team of experts providing all the services required in one smooth process. 

Our prices include any support you require with choosing your garden, office or leisure room, with delivery included. 

We also offer a building service at an additional cost, we’d be happy to discuss that with you. 

We project manage from start to finish which means you interact with a core team of experts. All your needs and requirements are met and looked after on a personal level.

We want to get to know you and how your business works, how your school wants to evolve with the ever-changing progressions in life, and what vision you have for your existing or new home. 

Once we understand what you’re looking for we can provide a solution that suits your individual requirements.

  1. It is important that any work at home, in a work place or learning environment is carried out by competent professionals who are committed to quality, safety and customer care.

    NAPIT certificated scheme members have demonstrated their competence, they hold the necessary insurances and have the right processes and procedures to assure compliance.

    NAPIT registered installers are:

    •  Able to complete work safely and to legally required standards

    •  Regularly assessed to provide assurance of their ongoing competence

    •  Capable of working to the very latest health and safety regulations

    •  Able to provide you with the necessary certificates to demonstrate the regulatory compliance of the work they do. These certificates may be requested by tenants, insurance providers and solicitors and may be needed if you are looking to let or come to sell your property.

Being an accredited safe contractor typically means that a contractor or company has undergone a vetting process to ensure compliance with health and safety standards, certified by organisations like SafeContractor. For an individual, hiring an accredited safe contractor shows a commitment to professionalism, adherence to legal regulations, and a focus on safety. It provides assurance that the contracted work will be carried out with a high regard for health and safety standards, reducing risks and offering peace of mind. Accreditation may also indicate that the contractor has the necessary insurance coverage and is dedicated to maintaining quality standards in their work

We take on projects of all sizes – smaller jobs are sometimes easier to squeeze in between bigger jobs. Get in touch with us and we’ll happily talk through your requirements.

Two men shaking hands

DON'T JUST TAKE OUR WORD FOR IT!

Get In Touch

0151 294 6316

    000000

    Team of men work work at 414 Solutions
    The request is missing an API key. Or, The key parameter is invalid.